

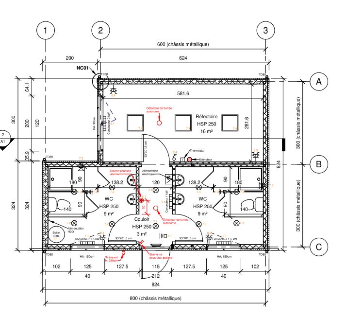
Module 3-en-1 Réfectoire, Vestiaire et Sanitaire : la solution idéale pour les PME
Avec ses deux espaces sanitaires séparés , équipés deux douches , deux deux WC et quatre lavabos
Le réfectoire intégré constitue un espace supplémentaire par exemple pour les pauses repas.
La zone vestiaire, quant à elle, permet un rangement pratique et ordonné des effets personnels, indispensable pour préserver la propreté et l’organisation.
Ce module se distingue par ses équipements , comme les portes intérieures en stratifié gris , un boiler de 300 litres, garantissant l’approvisionnement d’eau chaude
Ce module est équipé d’ une porte extérieur et de fenêtres
Optez pour ce module 3-en-1 et offrez à votre équipe un cadre de travail moderne et parfaitement adapté à leurs besoins à un prix raisonnable .
N’hésitez pas à venir le visiter sur notre site , module proposé dès 45.000€ Réf F34
Belgique
Degotte sa
Z.I. Hauts Sarts, Rue de Hermée 246, B-4040 Herstal
+32 4 240 05 25
sales@degotte.com
Luxembourg
Degotte sarl
439, ZAE Wolser F
L-3290 Bettembourg
+352 26 59 56 951
sales@degotte.com
Horaires
Bureaux ouverts du lundi au vendredi de 8 heures à 17 heures.
Restez informé et inscrivez-vous
© 2022 Degotte | Termes & conditions | Vie privée | Conditions générales de vente et location |